案例详情/Case details
小空间整合多功能,Juice理发店
    发布时间: 2018-01-03 13:21    
小空间整合多功能,Juice理发店

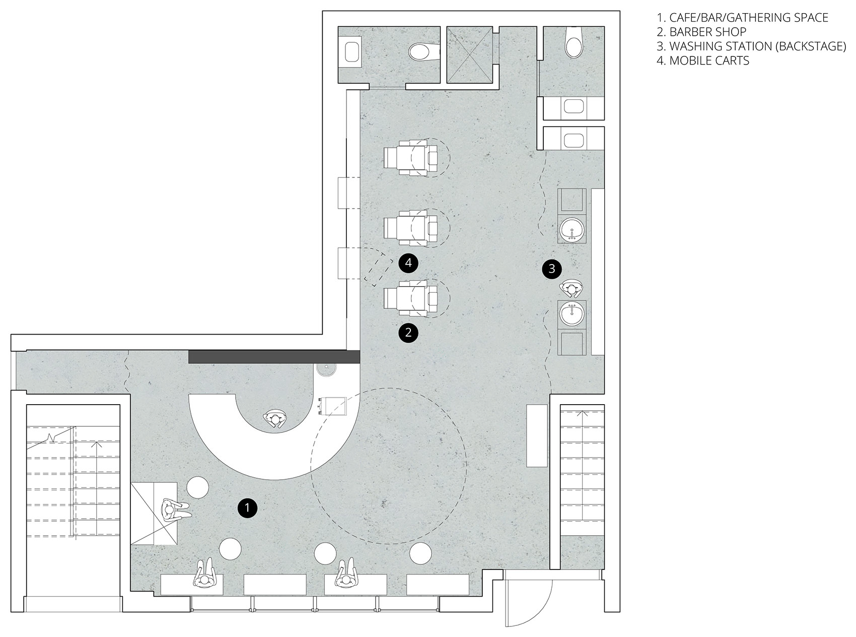
    Juice咖啡理发店需要在诸多功能元素之间取得平衡。项目的功能要在理发店,咖啡厅,鸡尾酒吧和多功能机会空间之间转换,为了实现这一目标,设计采用了隐藏未使用构件的策略,使得这个仅有80平米的空间可以灵活容纳最多的功能,同时具有一种不经粉饰的现代美感。
        项目中最引人注目的部分是由弧形金属波纹板和混凝土做成的吧台,它几乎占据了整个空间,侧面可以用作理发师的工作台。吧台下方设有可以随意移动的推车,理发椅也可以简单地收纳到洗发间中。模块化的复合木板椅进一步加强了空间的灵活性,它们可以被移动组合以适应不同功能。

终于等到您!!!
专注公装15年、浙江装饰设计装修行业界实力和口碑兼具的资深装企。

【选择决定品质,专注公装设计装修让空间更出彩、更省钱专注公装设计尤其是在售楼处设计 | 民宿设计 | 会所设计 | 办公楼装修 | 办公楼设计 | 美容院装修设计 | 酒店装修设计 | 餐饮店装修 | 培训机构装修 | 展厅设计公司 | 店铺装修设计 | 店面装修设计 | ktv装修设计 | 办公空间装修设计 | 宾馆装修 | 厂房装修公司 | 厂房设计 | 服装店装修设计 | 会所设计 | 私人会所装修设计 | 会所装修 | 酒吧设计 | 特色酒店装修 | 咖啡厅装修 | 咖啡厅设计 | 美发店装修 | 美容院装修设计 | 图书馆设计 | 网咖装修 | 网咖设计 | 别墅装修设计 | 洗浴中心装修 | 写字楼装修 | 写字楼设计 | 医院装修公司 | 私人影院装修 | 幼儿园装修设计 美发店设计公司 | 汽车4s店设计 | 直播间设计装修 | 母婴店设计公司 | 医院空间设计公司 | 实验室设计装修 |中医馆设计方案 | 药店设计装修 | 娱乐空间设计 | 茶室设计方案 | 酒吧设计公司 | 足浴养生设计 | 网吧设计公司 | 台球室设计装修 | 室内健身房设计 | 高端会所设计 | 运动馆设计怎么收费 | 奶茶店设计方案 | 成都火锅店设计 | 网红烧烤店设计 | 港式茶餐厅设计 | 快餐店设计策划 | 蛋糕店设计方案 | 咖啡厅设计案例 | 面馆设计公司 | 日料店设计费用 | 中式餐厅设计特色 | 主题餐厅设计 | 店铺设计装修全套 | 宠物店铺设计 | 服装店面设计 | 杭州展厅设计 | 水果店设计装修 | 美容美甲店设计 | 超市设计费多少钱一平方 | 办公室设计 | 食品公司办公室设计 | 金融公司办公室设计 | 网络公司办公室设计 | 科技公司办公室设计 | 广告公司办公室设计 | 医药公司办公室设计 | 贸易公司办公室设计 | 事务所办公室设计 | 研发中心办公室设计 | 厂房设计费多少钱一平米 | 酒店设计公司 | 民宿设计公司 | 宾馆设计平面 | 教育机构设计装修 | 专注学校公装设计 | 幼儿园教室设计 | 品牌餐饮店设计民宿设计店铺装修设计店面装修设计售楼处设计展厅装修展厅设计公司办公室装修设计写字楼装修会所装修设计培训机构装修宾馆装修公寓装修酒店装修设计美容院装修设计医院装修餐饮店装修以及大型  商业空间等。

声明:装修效果案例是本公司为客户提供的设计以及装修案例展示图片,未经同意请不要拷贝。如有侵权请联系公司或添加负责人微信、谢谢配合。


专注公装六大优势
专注办公商业空间研究,行业资深设计团队,施工标准化管理,提供一站式办公空间设计+施工整体解决方案!
  • 01
    一站式办公空间整体解决方案
    公司可以提供全定制办公家具+空调系统+消防+强弱电设备+智能办公系统+办公风水+软装配饰设计+导视系统设计+绿化设计为一体的一站式办公空间整体解决方案
  • 02
    合作8万平制造中心,一线主材品牌
    浙江战略合作超8万平制造中心,定制办公家具,成品办公隔墙,施工材料配送中心,价格可控,生产制造能力强
  • 03
    专注办公空间品牌,500强企业的选择,国家设计施工二级资质
    国家设计施工二级资质,以严谨规范化的管理,高品质的出品,获得金地地产、雅昌印刷、畅游等知名企业的青睐



  • 04
    行业资深专业办公空间设计团队
    公司充分利用浙江丰富设计资源,打造专业办公设计团队,倾力打造一站式公装服务平台
  • 05
    专业施工团队 标准化管理 全透明装修
    百余支施工班组,500余人,12大金牌服务体系,确保工程按时、按质、按量完成
  • 06
    严格质量管控,六年金牌质保服务
    360°立体化质量管理体系,一线主材工厂直供,提供硬装1年质保,办公家具6年质保服务